Lägenhet
Stensborgsgatan
Stensborgsgatan, Eskilstuna
eskilstuna soder

1 / 11
14510
kr/mån
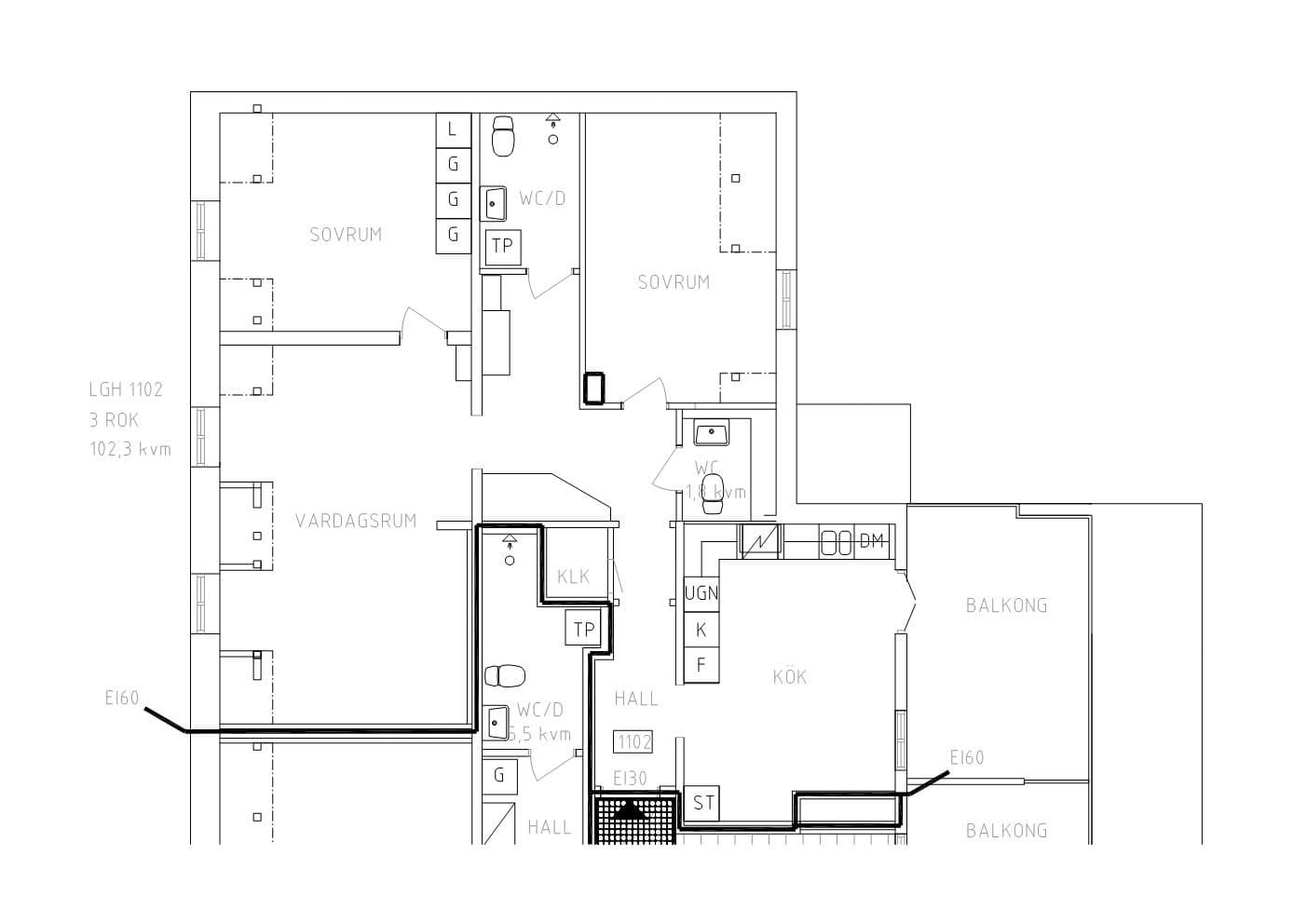
3
rum
102
m²
2025-12-19
Publicerad
Om bostaden
Lägenheten har kök från Marbodal och rostfria vitvaror(kyl, frys, varmluftsugn, mikrovågsugn, diskmaskin och induktionshäll) samt parkettgolv. Helkaklat badrum med golvvärme, duschplats, toalett, handfatskommod, badrumsskåp, handdukstork, tvättmaskin och torktumlare. Samt även en gästtoalett. Fiber finns indraget, du bestämmer själv leverantör och tjänster. Rök- och djurfritt gäller i lägenheten.